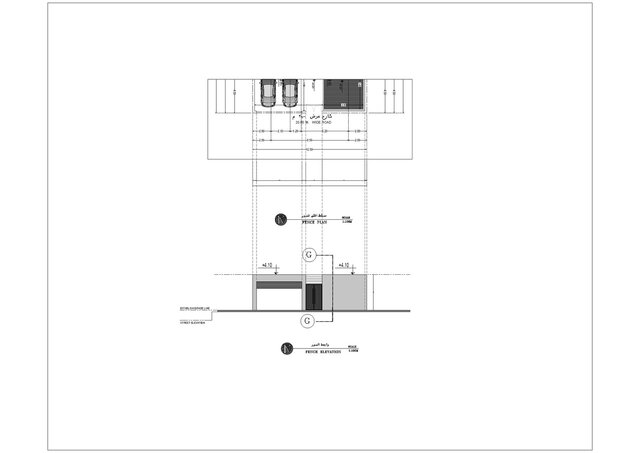
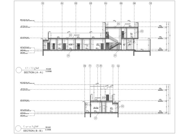
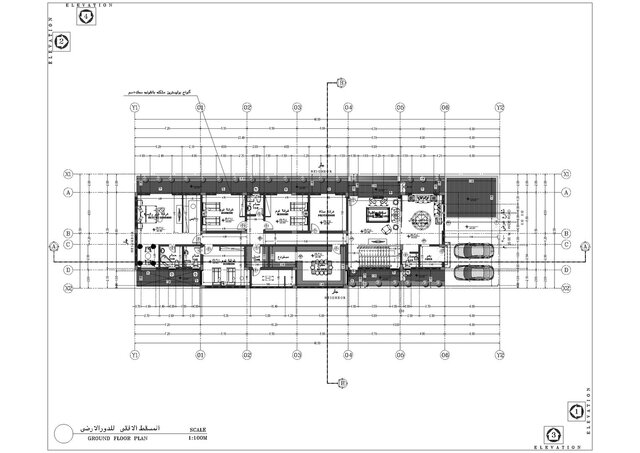
Modern Villa

This project presents a modern villa design that combines contemporary architectural aesthetics with functional residential spaces. The concept focuses on clean geometric lines, balanced volumes, and a harmonious integration between the building and the surrounding landscape. The design emphasizes simplicity and elegance through the use of modern materials, large glass openings, and carefully selected textures that enhance natural lighting and spatial openness. The façade composition highlights the contrast between solid architectural masses and transparent elements, creating a dynamic yet balanced visual identity.
architectural-2d-drafting-services shop-drawing-outsourcing-services architcture 2d-3d-design villa-design modern-vill