Modern UK Farmhouse Design

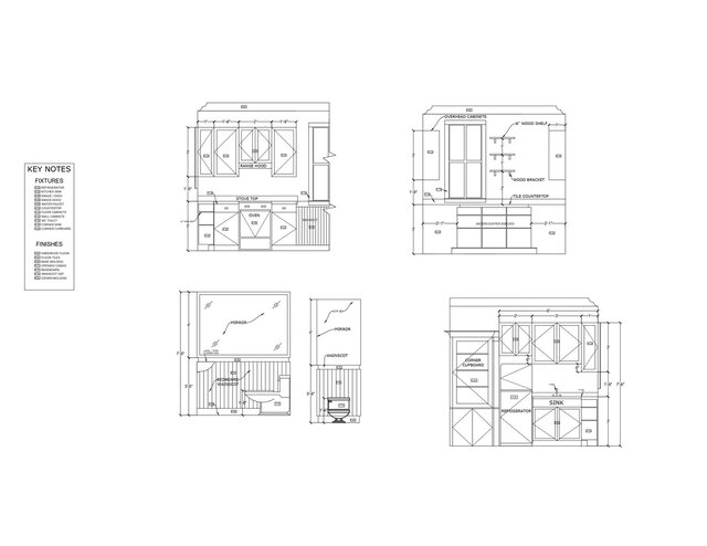
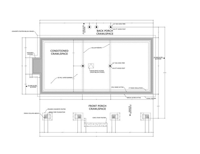
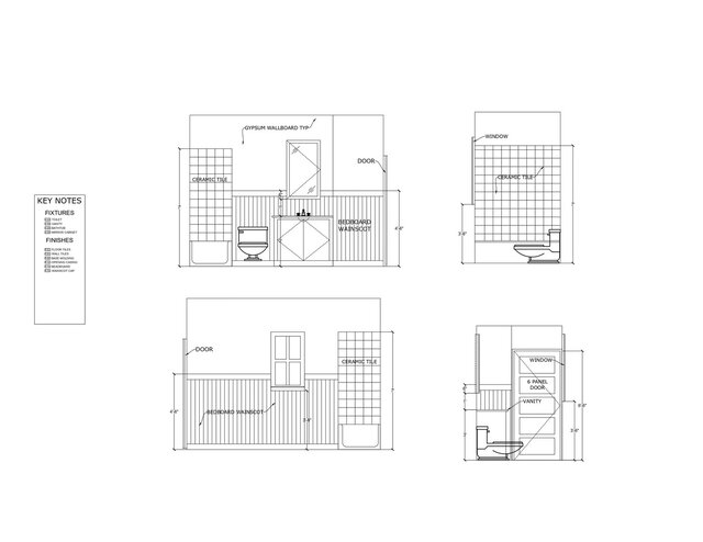
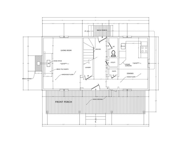
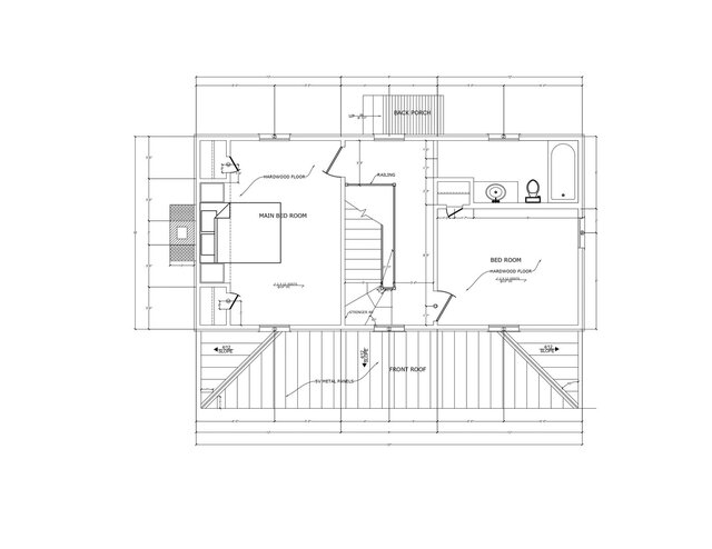
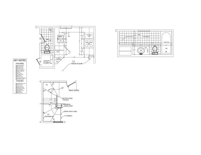
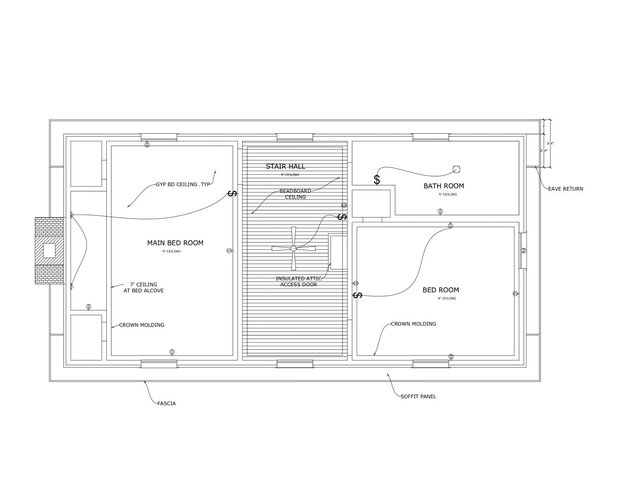
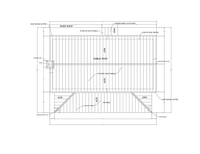
This project showcases a modern countryside farmhouse thoughtfully designed for a UK-based client. The concept blends classic rural charm with contemporary architectural aesthetics, ensuring both comfort and sophistication. Project Highlights: Site-Responsive Layout: Designed to complement the natural landscape and maximize scenic views. Functional Space Planning: Spacious living area, open kitchen, and cozy bedrooms designed for warmth and efficiency. Architectural Detailing: Clean lines, pitched roofs, and large glazing to bring in natural light. Exterior Design: A balanced mix of brick, wood, and neutral tones that reflect the traditional UK farmhouse character. Interior Concept: Modern rustic interiors with elegant finishes and carefully selected textures. Drawings & Files: Complete 2D plans, 3D modeling, elevations, and realistic renders prepared for client presentation. This farmhouse design represents the perfect harmony between modern living and countryside serenity, tailored precisely to the lifestyle and preferences of the UK client.

Files (18)

License: CC - Attribution - Non-Commercial Learn more
archi-cad-drwaing-services