California MEP Design for Addition and Remodel

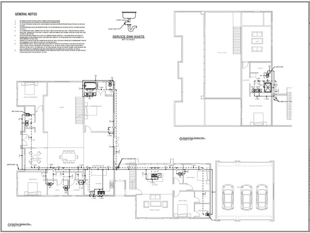
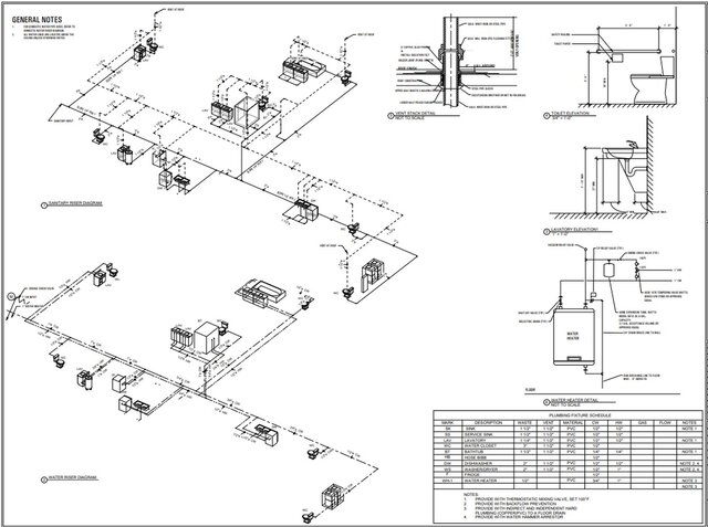
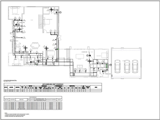
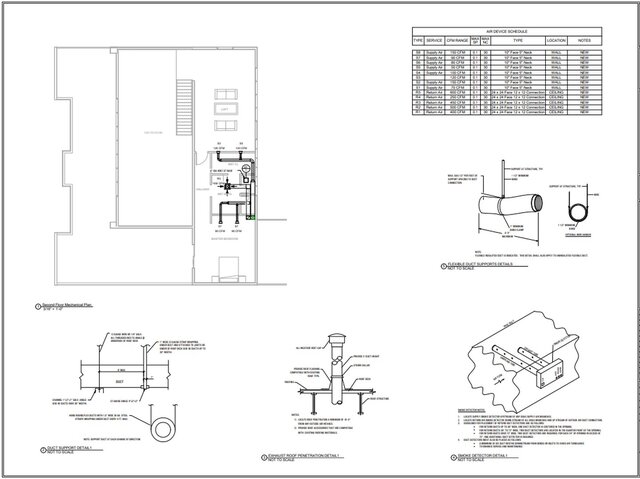
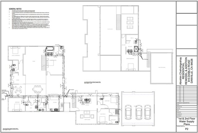
In collaboration with the architect, I delivered MEP plans that was approved by the city on the first submission. ⚡ **Electrical (E)** The project includes a comprehensive electrical system for the residential remodel and addition, designed to comply with the National Electrical Code (NEC) and California Energy Code (CEC). • **Service and Distribution:** The property is served by a 200-Amp, 120/240V, 1-phase, 3-wire main service. Power is distributed from a 200A main panel (Panel A) which also feeds a new sub-panel (Panel B). All new circuit breakers are specified as bolt-on type. The system is grounded to a grounding rod and the main water pipe. • **Wiring and Conduit:** All conductors are specified as copper. Metal Clad (MC) cable is permitted for branch circuits in concealed areas (walls/ceilings) , while all homeruns must be installed in EMT (Electrical Metallic Tubing). The minimum conduit size is 3/4-inch. • **Power and Devices:** o Safety (GFCI): Ground-Fault Circuit Interrupter (GFCI) protection is required for all bathroom receptacles, all kitchen countertop receptacles, receptacles within 6 feet of a sink, and the dishwasher receptacle. o Safety (TR): All newly installed or replaced receptacles must be Tamper-Resistant (TR). o Dedicated Circuits: Bathrooms with new outlets require a dedicated 20-Amp circuit. Kitchen countertops must be supplied by a minimum of two 20-Amp branch circuits. A dedicated circuit is also required for the range exhaust hood. • **Lighting and Energy Efficiency:** o Controls: All lighting fixtures must be controlled by either a dimmer switch or a manual-on vacancy sensor that automatically turns off. o Bulbs: All light fixtures must contain bulbs labeled as JA8-2016 compliant. o Fixtures: Recessed lighting fixtures are required to be IC-rated (Insulation Contact) and AT (Air Tight). o Outdoor Lighting: All outdoor lighting is required to be controlled by a photocell and a motion sensor. • **Life Safety:** The system includes interconnected 110V smoke detectors (SD) with battery backup and carbon monoxide (CO) detectors. ________________________________________ 💨 **Mechanical (M)** The mechanical scope involves the installation of a new forced-air HVAC system and dedicated ventilation for bathrooms and laundry. • **HVAC Equipment:** The design includes two new 1680 CFM floor-mounted Air Handling Units (AHU-1). Each unit provides 54,000 BTUH of total cooling, has a 16 SEER rating, and runs on 230V/1-phase power. • **Controls:** The HVAC system is controlled by automatic programmable thermostats featuring night setback capabilities. • **Ductwork:** o Specification: All new ductwork is to be fabricated from galvanized sheet metal per SMACNA standards and sealed with approved duct mastic. Flexible connections are required at all AHUs and fans to reduce vibration. o Insulation: Ducts located in attics or crawlspaces must be insulated with 3-inch thick wrap (R-8.5 minimum). Concealed interior ducts are insulated with 1-inch wrap (R-5.6 minimum). Any exterior ductwork requires 2-inch rigid insulation (R-8.5) with a weatherproof finish. • **Ventilation:** New ceiling-mounted exhaust fans (EF-1) are specified for all bathrooms and the laundry area. These fans are 120V and are vented via 6-inch diameter ducts that terminate at the roof with a weatherproof vent cap. Per code notes, bathroom exhaust fans must be rated for at least 50 CFM and be controlled by a separate switch from the lighting. • **Safety:** Duct smoke detectors are specified for systems over 2000 CFM and must be interlocked with the fan shutdown.
revit mechanical duct electrical fire-design mep ductwork revit-mep plumbing mep-design mep-engineering-services mep-engineering-solutions calculations duct-drawing duct-shop-drawings fire-fighting duct-pipe-sizing elite-software title24 licensed