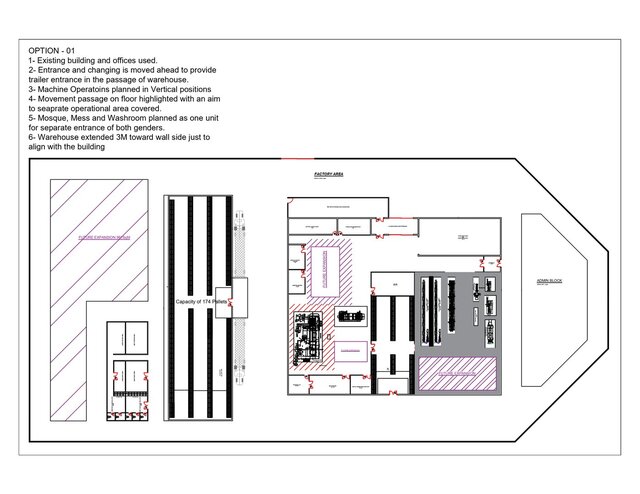
Manufacturing Facility and Warehouse Design

I specialize in optimized facility and warehouse layout design, focused on creating efficient process flows where every square foot contributes measurable operational value. My approach integrates Lean principles, material flow optimization, and compliance with ISO/OHSAS standards, ensuring safe, scalable, and high-performance industrial environments.
factory-layout layout-design layout-plan manufacturing-optimization