Lift Petit

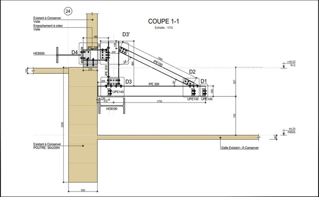
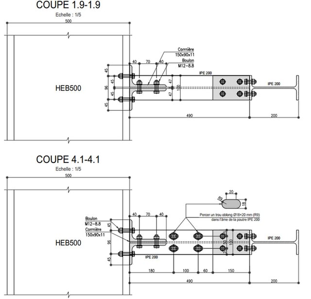
I provide precise Lift Petit structural and fabrication drawings for small lift/mini-elevator systems used in residential and light-commercial projects. Drawings include steel frame, plates, guides, brackets, anchorage, shaft details, sections, and exact dimensions—prepared according to Eurocode + French standards.

Files (10)

License: CC - Attribution Learn more
Published
revit-3d-modeling-service