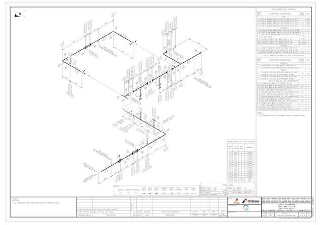
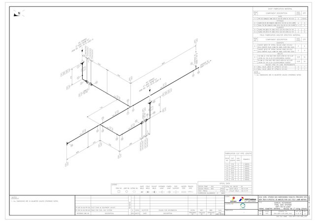
Isometric Drawing for Fuel Gas System - Nozzle 2"

This is a detailed Piping Isometric Drawing for a Fuel Gas System, part of a maintenance facilities project for Pertamina. The drawing provides all necessary information for workshop fabrication, including: - A complete Bill of Materials (BOM) listing all components such as pipes, flanges, elbows, gaskets, and bolts. - A precise Cut Pipe Length list for accurate preparation. - All dimensions, orientations, and item specifications required for assembly.
piping isometric fabrication technical-drawing shop-drawing mechanical-drawing cad-2d 2d-cad-drawing isometric-drawing