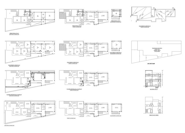
2D Irregular plot 2D Drafting by using AutoCAD

In the first portion, it features 2 bedrooms with attached bathrooms, a kitchen, a drawing room, a general bathroom, and a lawn, providing a comfortable and functional layout. In the second portion, it includes 1 bedroom with attached bathroom, a living room, a kitchen, and a general bathroom, maximizing usability while maintaining privacy and modern design aesthetics.
2d-drafting 2d-floor-plan 3d-floor-plan 2d-design 2d-elevation-drawing 2d-3d-design house-plan autocad-2024 autocad-floor-pln