Industrial Staircase System: Design for Manufacturing (DfM) & Site Integration

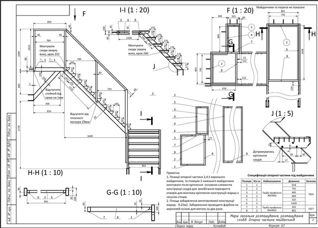
Professional engineering of a multi-flight industrial staircase system, optimized for rapid production using standardized off-the-shelf components. Standardized Component Integration: Designed the assembly to use mass-produced galvanized steps ($240\times800$ mm) and industrial gratings, reducing custom fabrication costs.+2Site-Specific Engineering: Developed the structural layout with precise site integration, including mounting points to existing walls using chemical anchors (Metalvis Ecofix).+3Detailed Manufacturing Package: Created a comprehensive 6-page technical set, including assembly drawings (SB), precise cutting lists for profiles (St3), and coating specifications.+4Safety & Ergonomics: Engineered integrated handrails and safety balustrades with precise mounting tolerances for industrial environments.
solidworks design-for-manufacturing steel-structures bom-bill-of-materials metal-fabrications