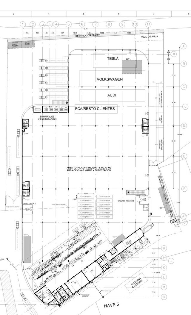
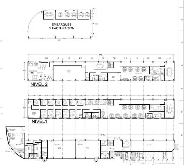
Industrial Architectural Plan – Production Documentation

Architectural plan developed as part of an active industrial project, focused on coordination, dimensioning, and construction-ready documentation. Scope included large-scale layout coordination, service areas, access routes, ramps, offices, and revision tracking across multiple project phases. This work represents production-focused drafting intended to support engineering, construction, and operational teams.
archictectural-design civil-2d-drafting-drawings-services 2d-3d-drafting cad-2d