Connecticut HVAC Design for 2-story Residential in Fairfield, CT

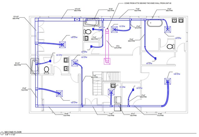
This project involves the furnishing and installation of a complete Heating, Ventilation, and Air Conditioning (HVAC) system as part of a Renovation Project at a residential property located at Fairfield, CT. **Scope of Work ** The work under this section is not limited to, but includes: • Exhaust Fans & Ductwork • Ductwork, Grilles, and Diffusers • Thermostat Wiring • Providing and installing Access Panels for concealed valves, dampers, and controls. • Testing and Balancing of the entire system, including airflow checks at all inlets, outlets, and duct lines, with adjustment to within 10% of design airflow. • Electrical Control Wiring for the air conditioning, heating, and ventilation equipment. **Key Design and Installation Notes** • Duct and Unit Location (First Floor): All ducts and indoor units on the first floor are located under the floor. • Duct and Unit Location (Second Floor): All ducts on the second floor pass through the ceiling. The second indoor AC unit is located in the attic behind the knee wall. • Register Placement: Registers are located in different parts of the rooms to ensure uniform air distribution and minimal noise during operation. • Bathroom Ventilation: A wall-mounted register is provided for the bathroom, placed at a height of 7 feet. The corresponding duct is narrow enough to be hidden inside the wall. • Range Hood Outlet: The hood outlet duct will be installed 1.5 feet above the garage ceiling. • Exhaust Requirements: All bathrooms must have a mechanical ventilation system providing a minimum airflow of 50 CFM, regardless of operable windows. All exhaust fans must be Energy Star compliant and ducted to terminate outside the building. **Applicable Codes and Standards** All work must comply with the latest editions of the following codes and standards, with the most stringent requirements governing the installation: • ASHRAE Standard • 2022 Connecticut State Building Code • 2021 International Mechanical Code (IMC) • All Local Codes and Ordinances
hvac ventilation cad-drawing hvac-design hvac-duct-drawings hvac-duct-design hvac-cad-drawings ac duct-work residential-hvac mechanical-plan bilding-code-compliance attic-unit building-code-compliance undergound-ductwork second-floor-ac ventilation-system ashrae-standard connecticut-state-building-code ceiling ceiling-ventilation attic-ventillation attic