2D to 3D Convert Floor plan in AutoCAD and SketchUp

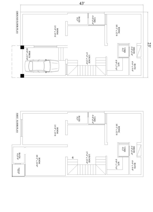
This 23x43 ft modern house plan features a well-planned layout with attention to full spacing and functionality. On the ground floor, it includes 1 bedroom with attached bathroom and dressing area, a kitchen, a living room, and a drawing room. The first floor consists of 3 bedrooms with attached bathrooms, a TV lounge, and an additional kitchen, all designed with modern aesthetics and efficient space utilization. This design balances comfort, style, and practicality for contemporary family living.
drafting 3d-floor-plan house-plan sketchup-model autocad-2d-design 2dfloorplan 2d-to-3d-convert