I will create 2D or 3D Floor plan architectural plan Site plan in AutoCAD and SketchUp

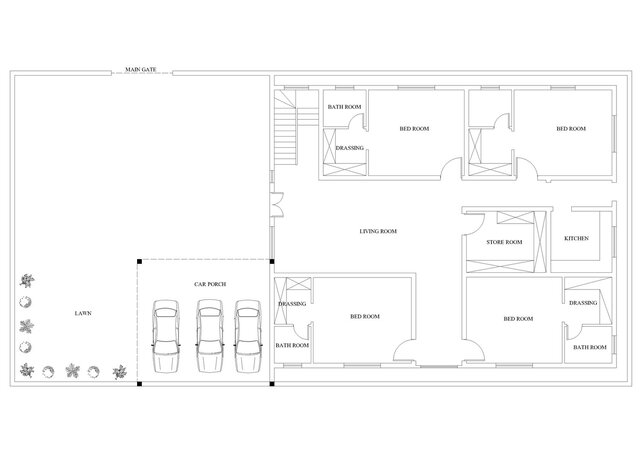
This is a 51x101 ft residential house plan featuring 4 bedrooms, each with an attached bathroom and dressing area, a kitchen, and a store room. The design includes a spacious living room of 21x20 ft, a 20x20 ft car porch, a 20x20 ft lawn, and a 30x40 ft open space, offering a comfortable and modern layout with functional and aesthetic spaces for family living.
2d-floor-plan 3d-elevation 2d-to-3d-cad-designing house-desgin 2dfloorplan darfting autocad-2d-plan 2d-elevation