High-Efficiency Industrial Pulse-Jet Baghouse Filter

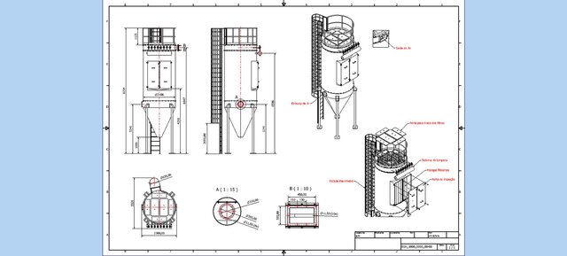
Development of a high-performance industrial filtration system designed for air pollution control and particulate matter recovery. This project integrates advanced mechanical design with computational optimization to ensure maximum filtration efficiency and reduced operational costs. ​Technical Specifications: ​Flow Capacity: 5,520 m^3/h (92 m^3/min). ​Filtration Area: 92.8 m^2 (64 high-performance filter bags). ​Air-to-Cloth Ratio: Optimized at 1.0 m/min for sub-micron particulate capture. ​Cleaning System: Automated Pulse-Jet system featuring 8 solenoid valves and a 120L high-pressure header tank. ​Structural Design: Cylindrical housing for superior vacuum resistance and aerodynamic flow. ​Key Contributions: ​Full 3D modeling and assembly using Autodesk Inventor, following DFM (Design for Manufacturing) principles. ​Calculation of pressure drop (\Delta P) and air-to-cloth ratios to ensure a 99.9% collection efficiency. ​Development of a Python-based simulation to optimize cleaning pulse intervals, reducing compressed air consumption by 15%.
mechanical-2d-drafting-design-services filter-design engineering-3d-models bag-filter