GOLD Gallery

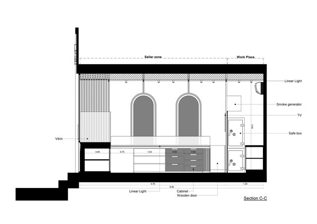
This retail renovation project for a gold and jewelry gallery was designed to optimize product visibility within extreme spatial limitations—just a 2×6 meter space and a 2-meter-wide storefront. The design balances openness with strict security needs, offering visual privacy between customer and seller while maintaining maximum exposure for products. Smart zoning, material choices, and circulation paths were used to achieve a seamless blend of elegance and practicality in a compact environment. Tools used: Revit, 3ds Max, Corona Renderer, Photoshop, Enscape
architecture photoshop 3ds-max interior-deign interior-architectural-design enscape post-production renderin revit-architecture corona-render 3d-modeilng