From Architectural Design to Construction Drawing

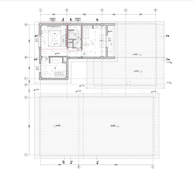
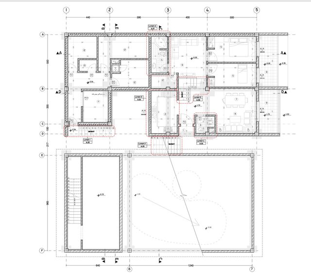
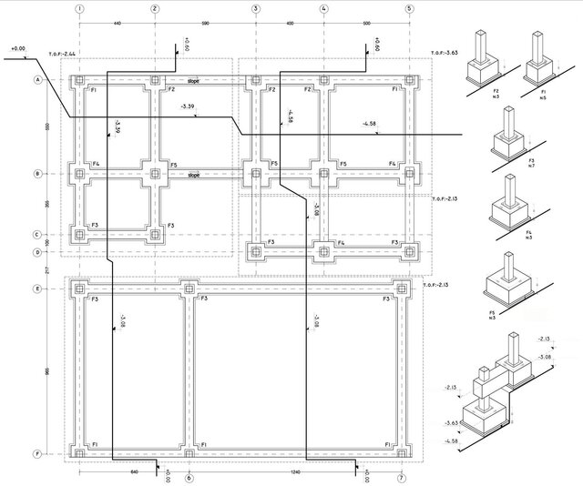
I designed a custom building for a client who commissioned a building with three different sizes, a swimming pool, and a small courtyard to meet their needs. I was responsible for the complete design and drafting of the building, from start to finish, using AutoCAD software. This included the complete design of the construction details.
autocad architechtural auto-cad auto-cad-drafting elevation-design residence-design autocad-architecture archetecture autocad-2023 design-and-drawing archetectural-design residenceplan residentail elevation-drawings