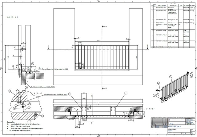
French Balconies, Terraces & Loggias – Design to Installation

This project included the complete design and delivery of French balconies, terraces, and loggias for residential developments in Germany. All dimensions were measured on site to verify as-built conditions. Based on architectural drawings and structural calculation files, the systems were redesigned and modeled in a 3D CAD environment. On-site measurement checks were performed throughout the process, and detailed fabrication and installation drawings were prepared, ensuring a fully coordinated project from design to on-site implementation.
terrace steel-construction fabrication-drawing balustrade steel-fabrication-drawing fabrication-drafting-services steel-construction-detailing fabrication-shop-services steel-fabrication steel-fabrication-drawings metal-fabrication-drawings metal-fabrication balcony-guardrail balcony-railing balustrades