Folding Mobile Bleachers: Custom Design for Manufacturing

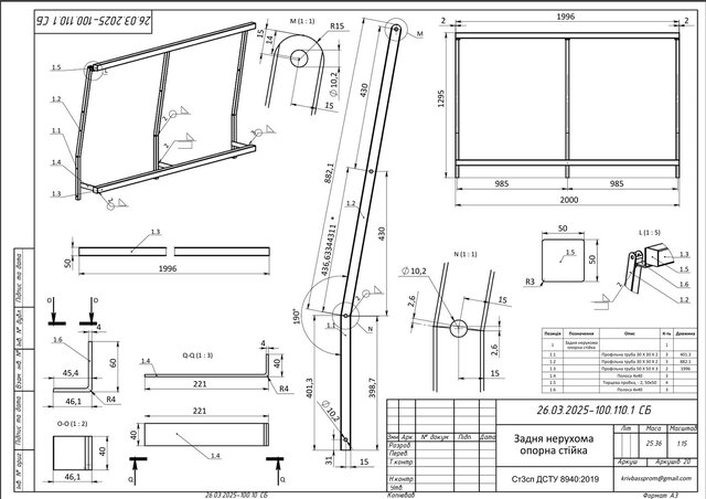
Development of a foldable mobile bleacher system based on custom dimensions and video references from YouTube. This project focuses on mechanical transformation logic and production readiness. Custom Engineering: Transformed visual concepts and specific dimensional constraints into a fully functional mechanical assembly. Kinematics & Transformation: Designed the folding mechanism using gas springs (Monroe ML5826) for easy deployment and storage. Full Production Package: Created detailed assembly drawings (SB) and a complete Bill of Materials (BOM), including metal profiles (St3) and laminated plywood components. Material Optimization: Optimized the structure for durability and weight, specifying exact hardware from self-tapping screws to inter-section ties.
solidworks steel-structure design-for-manufacturing plywood-design design-for-manufacturing-dfm technical-drafting bom-bill-of-materials metal-structures custom-engineering kinematic-design gas-spring-mechanism space-saving-furniture mobile-seating