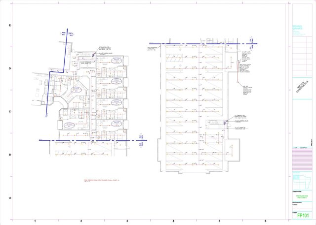
Design of Fire Protection and Detection System Sprinkler NFPA Hydraulic Calculation

Hello, I am a Professional Mechanical Design Engineer with 15+ years of experience in detailed Fire Protection and detection design and installation. I completed the design and installation of Automatic Fire Sprinklers, Fire alarms, firefighting, Plumbing and Electrical systems for various Residential and Commercial Projects per standards and specifications. I have all the technical skills, experience, and practical project management skills to complete your task professionally and quickly. I will provide all the aspects of Fire Protection and Detection System. 1. Fire Sprinkler Design Layout as per NFPA 2. Plumbing and Piping Expertise 3. Collaboration and Communication 4. Fire Hose Reel System 5. Fire Hydrant System 6. Fire Hydraulic Calculations Report (Elite Fire) 7. Pump Room Sizing and Fire pump room selection and detail 8. Fire Alarm system 9. Equipment Schedule 10. Bills of quantity 11. Technical Specifications and more >> Technical Writing >> Report Writing Skills: Revit MEP, Pro Engineer Wildfire, Solid works, Elite Fire (Hydraulic calculations), AutoCAD, Canute, MS Office, HAP 4.5 (Hourly-Analysis-Program), McQuay (Duct-size), McQuay (Pipe-size), Carrier psychometric chart.
autocad revit bim fire-alarm hose hydraulic plumbing fire-protection-system mep-design fire-extinguisher sprinkler-design sprinkler hydrant elite fire-engineering