Cooling. Airport

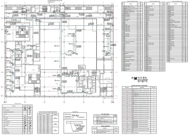
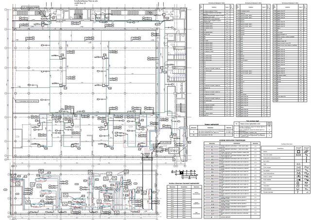
I carried out the full-cycle design of chilled water and air conditioning systems for the airport terminal complex of an international airport, which includes two passenger terminals, a VIP lounge, and a cargo terminal. My responsibilities included: - Designing a central chiller plant with year-round operation to supply chilled water to air handling units, fan coil units, and precision cooling systems - Developing air conditioning systems for server rooms, UPS, and electrical premises with 100% redundancy - Integrating precision air conditioners with dual heat exchangers (water/refrigerant) for mission-critical spaces - Performing full 3D modeling in Revit, including schematics, floor plans, equipment placement, and coordination with related disciplines - Preparing technical documentation, equipment schedules, and bills of quantities for construction and commissioning phases Result: I delivered a reliable and energy-efficient HVAC solution designed for 24/7 operation in the demanding environment of an international aviation hub.
cooling revit-mep-bim-modeling hvac-engineering bim-modeling airport