“Construction documentation sample – drawings developed by me as part of a professional collaboration.”
martina5
Follow
Hire
Collect
Share
Share with friends & colleagues
“Construction documentation sample – drawings developed by me as part of a professional collaboration.” design by martina5
Copy link
Email
Messages
WhatsApp
Messenger
Facebook
X.com
Linkedin
Report
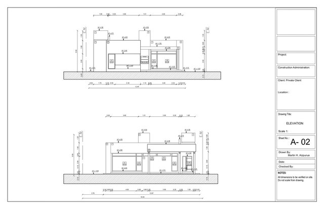
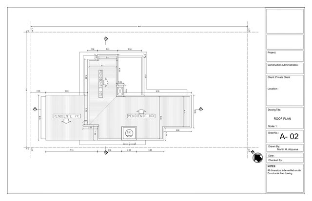
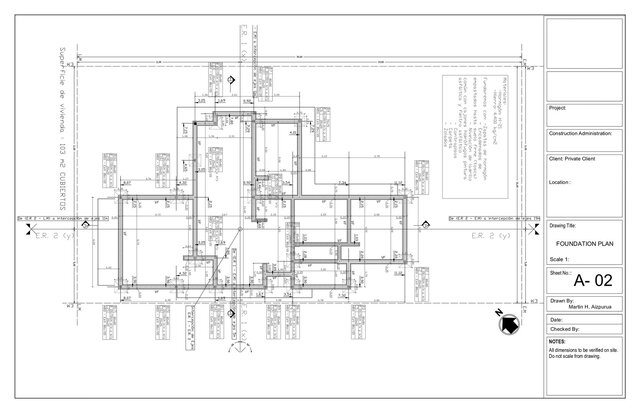
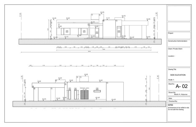
“Technical documentation developed by me within a collaborative residential project. Responsible for construction drawings, coordination, and execution-ready detailing.”
Published
Mar 2, 2026
in
Construction Drawings
Architectural Drafting Services
elevations
technical-drawing
ground-floor-plan
construction-drawings
residential-project
foundation-plan
architectural-documentation
buildable-documentation
cad-plans
construction-ready
Rendering Images