client likith and other front elevation and interior works design

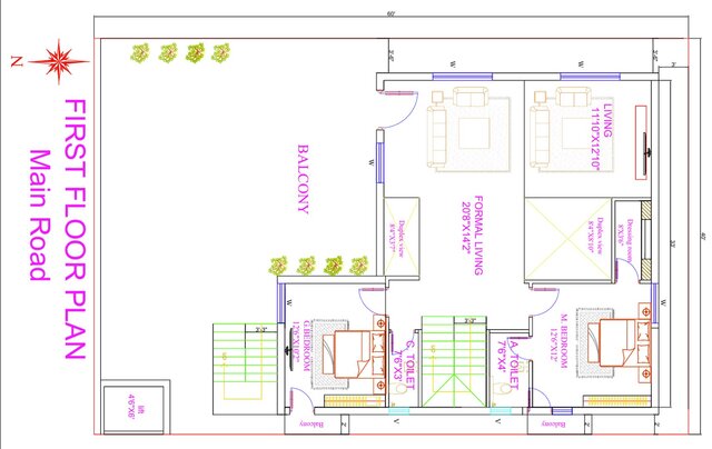
I have developed a comprehensive architectural solution for the client, Likith, consisting of both a detailed 2D floor plan and a fully realized 3D model. The 2D planning incorporates an optimized furniture layout, ensuring efficient space utilization, proper circulation, and functional zoning aligned with practical living requirements. The 3D model accurately translates the plan into a visually coherent structure, maintaining precise dimensions and proportional integrity. The exterior elevation is designed in a modern architectural style, emphasizing clean lines, balanced massing, and aesthetically refined elements to achieve a contemporary and visually appealing façade. The final output includes high-quality, realistic renderings that effectively represent material finishes, lighting conditions, and spatial depth, providing a true-to-life visualization of the project.
rendering-3d 3d-architectural-design