casa-32

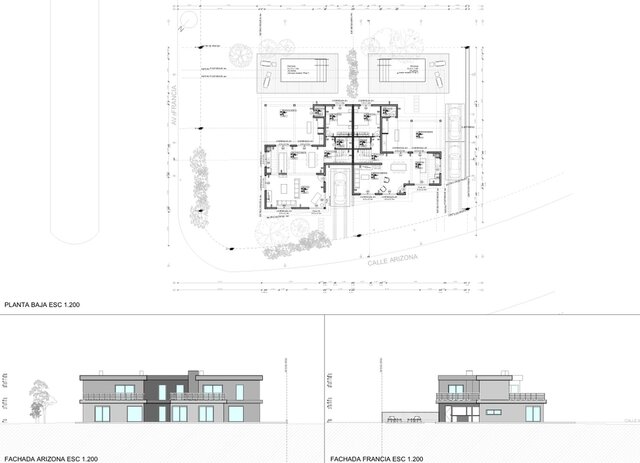
This project consists of two semi-detached residences located on a corner lot in a residential neighborhood of Punta del Este. The design is organized into two levels, with social areas on the ground floor—living, dining, and an integrated kitchen—opening onto private gardens and a semi-covered parking area defined by a wooden pergola. The upper floor contains the private bedrooms, each with generous natural light and access to front terraces that extend the interior spaces outward. The architectural language is contemporary, combining clean lines with a balanced composition of volumes. The material palette includes natural wood, stone cladding, and neutral-toned plaster finishes, complemented by metal railings and aluminum openings. Large windows enhance the connection between interior and exterior, while thoughtful lighting highlights textures and volumes. Overall, the project presents a functional, elegant, and well-integrated residential solution that emphasizes spatial quality, natural light, and refined materiality.
Published
design house autocad revit lumion architechture rendereing 3d-architectural-design