basundhara-nurun-nahar-begum

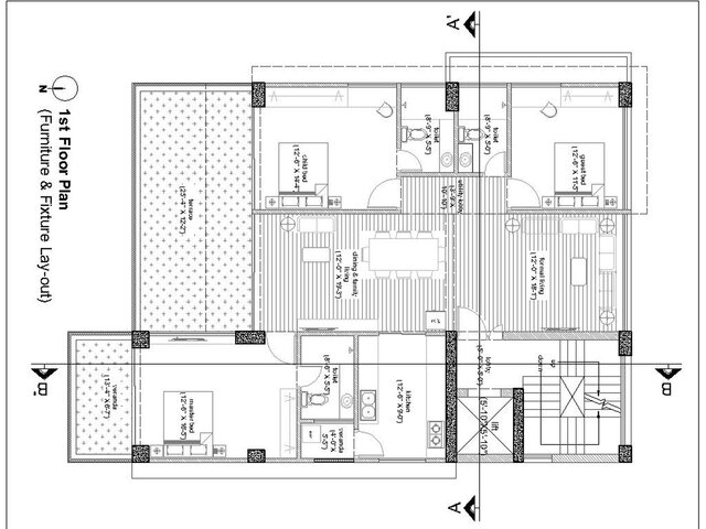
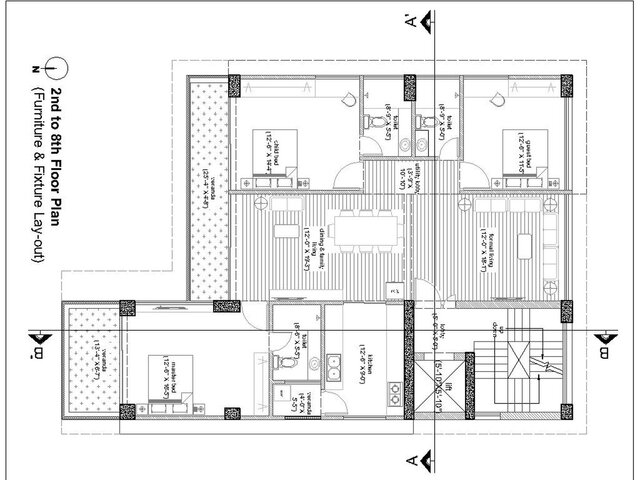
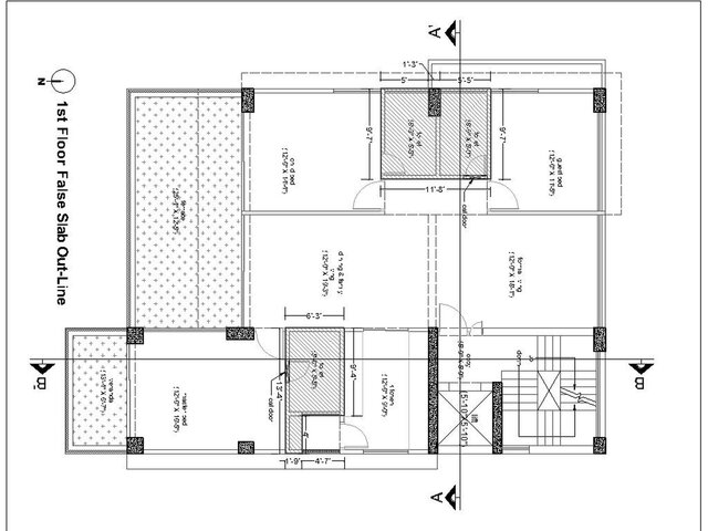
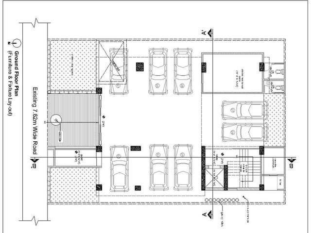
This project is a modern Ground + 8-story residential apartment building, designed with a single unit per floor, each covering approximately 1,400 square feet. It offers spacious, functional living spaces suitable for urban families. 🔹 Design Features: Ground Floor: Parking area, entry lobby, security room, and utility space. 1st to 8th Floors: Each floor includes: 3 Bedrooms (including 1 Master Bedroom) 3 Bathrooms (attached & common) Drawing Room Dining & Living Area Kitchen with store or servant space 2 Balconies or Verandas Core Design: Central lift, stairwell, and service shaft. 🔹 Highlights: Compact and efficient column layout Proper natural light and ventilation in all rooms Modern elevation design Scope for rooftop garden or community space Suitable for mid-to-high income urban residents This building is ideal for families seeking privacy and space on each floor. It follows modern architectural standards and can be customized based on local building regulations.
plan-layout