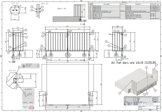
Balcony Balustrade Design, Fabrication & Installation

This project covered the complete design, fabrication coordination, and installation documentation of multiple balcony balustrades for residential projects in Germany. All balconies were measured on site to verify as-built conditions before design. The balustrade systems were developed in a 3D CAD environment in accordance with structural calculation files and architectural requirements. Production was closely followed, and detailed fabrication, installation, and assembly drawings were prepared, delivering the balcony projects from concept to on-site installation.
steel-design cad-drafting steel-construction cad-drafter steel-fabrication-drawing steel-detailing-services industrial-architecture steel-fabrication-drawing-services steel-construction-detailing steel-fabrication steel-fabrication-drawings steel-fabrication-detailing balcony cad-3d balcony-guardrail balcony-railing manufacturing-cad 3d-assembly-design manufacturable-design balcon