Apartment

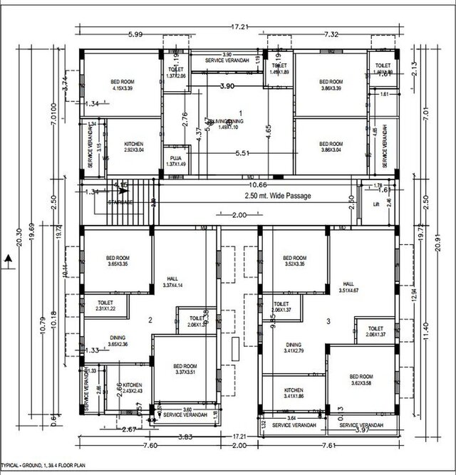
Transformed a client's 2D architectural plans into a detailed and accurate 3D model using Revit. This project required meticulous CAD drafting to ensure every element, from walls and windows to doors and structural components, was correctly represented in the 3D environment. This process facilitates better visualization and project representation. This project highlights my proficiency in converting traditional 2D drawings into intelligent 3D models.
Published
autocad cad-design 3d-modeling 2d-to-3d civil-2d-drafting-drawings-services 2d-architectural-design