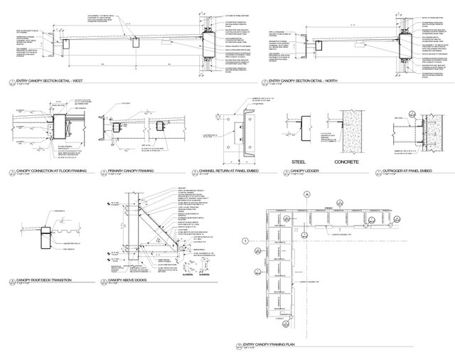
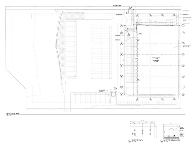
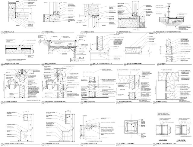
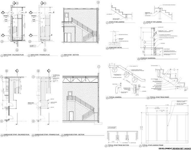
9710 SW DAY RD project
ronis
Follow
Following
Hire
Collect
Share
Share with friends & colleagues
9710 SW DAY RD project design by ronis
Copy link
Email
Messages
WhatsApp
Messenger
Facebook
X.com
Linkedin
Report
This building is located on 9710 SW DAY RD, WILSONVILLE, OR, USA
Published
Nov 30, 2025
in
Architectural Design
AutoCAD Drafting & Design
2D Drawings and Floor Plans
building-design
Rendering Images