2d-to-3d-revit-conversion-for-a-residential-house
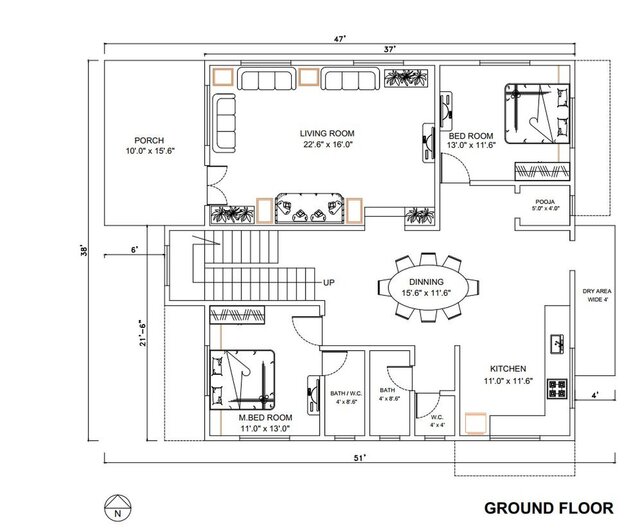
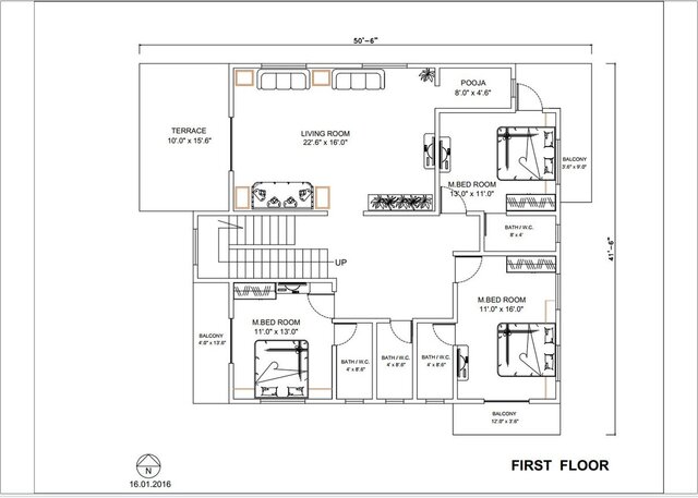
Transformed client-provided 2D floor plans into a detailed and accurate 3D architectural model using Revit. This project involved meticulous CAD drafting to precisely represent the ground and first-floor layouts. The final 3D model was created for visualization purposes, providing the client with a realistic and immersive view of the finished house. This work highlights my proficiency in converting traditional 2D plans into professional, multi-faceted 3D models for residential projects.
Published