2D Telecom Site Layout – RUR5903
shahidr2
Follow
Hire
Download all files
Collect
Share
Share with friends & colleagues
2D Telecom Site Layout – RUR5903 design by shahidr2
Copy link
Email
Messages
WhatsApp
Messenger
Facebook
X.com
Linkedin
Report
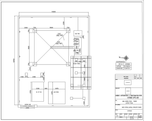
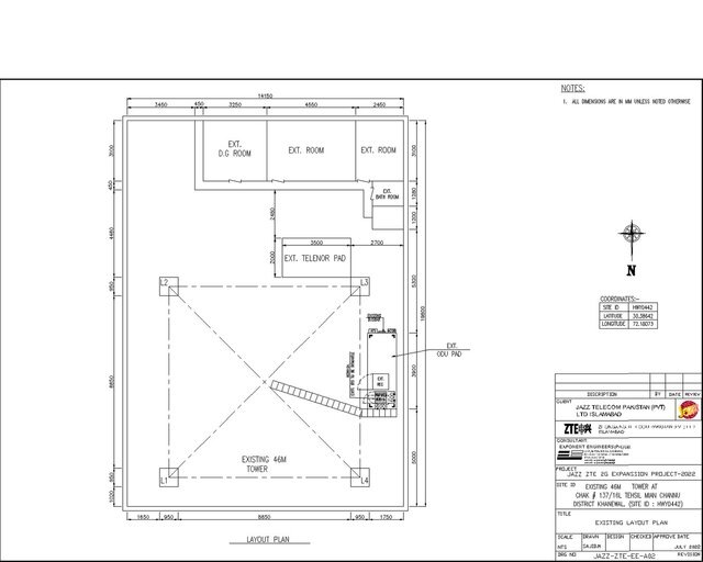
2D AutoCAD Telecom site layout drawing prepared with proper layers, dimensions, scale, and title block. Suitable for remote Telecom CAD projects and client submissions.
Files (8)
Files
License:
CC - Attribution
Learn more
Published
Feb 8, 2026
in
2D CAD Drafting Services
2D CAD Design Services
2D Drawings and Floor Plans
2d-drafting
telecom-tower
auto-cad
tower-design
cad-desgin
Rendering Images
AutoCAD
3D PDF Files