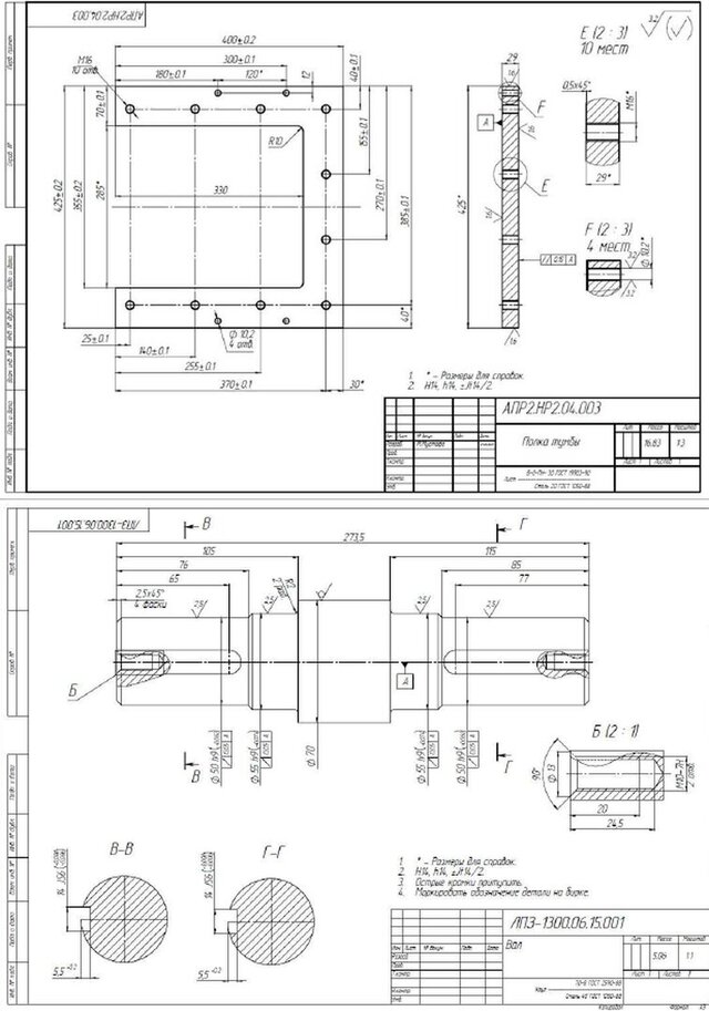
2D TECHNICAL DRAWINGS

These 2D technical drawings are prepared and released for manufacturing purposes, providing precise dimensional details, material specifications, tolerances, and assembly instructions. They serve as an essential reference for production teams to ensure accurate fabrication, proper component fit-up, and consistent product quality during manufacturing.
dfma blueprint-drawing