2656-roseview-ave, Los Angeles-ADU. Permit Work.
uthman
Follow
Following
Hire
Collect
Share
Share with friends & colleagues
2656-roseview-ave, Los Angeles-ADU. Permit Work. design by uthman
Copy link
Email
Messages
WhatsApp
Messenger
Facebook
X.com
Linkedin
Report
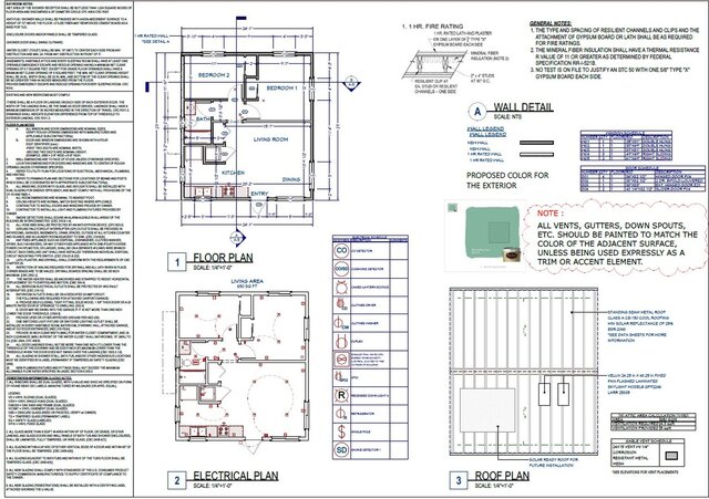
ADU as an addition to the house. Architecture design, drafting Green Roof proved the plan from the city to LA by me. Got the prime for it
Published
Jul 5, 2025
in
2D to 3D Conversion Services
2D CAD Design Services
2D Drawings and Floor Plans
building-3d-model
cad-3d-architectural-design
revit-3d-model
building-architecture
cad-2d
building-construction
Rendering Images