2500 Sqft 4 Bed Floor Plan Design

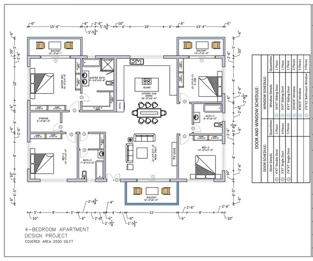
Designed a 2500 Sqft 4-Bedroom Apartment (2D Floor Plan) for a UK-based construction company with a budget of USD 750. The project featured a UK-style luxury layout emphasizing elegance, functionality, and modern comfort. The design included 10-foot walls, 6-foot windows and doors to enhance natural light and spaciousness. Spaces were organized with an open-plan living and dining area, a semi-open kitchen with utility, and four bedrooms, including a master suite with ensuite bath and walk-in closet. Executed using AutoCAD for the detailed 2D plan and Photoshop for the colored visualization, ensuring both technical accuracy and visual clarity. Deliverables included a PDF floor plan, source CAD file, and a high-resolution colored PNG plan. The entire project was completed and delivered within 3 days, achieving a refined balance of luxury design, detail, and efficiency that aligned with UK residential standards.
autocad floor-plan 2d-floor-plan color-2d-floor-plan-rendering houseplan