U.S. PERMIT DRAWING SET-RESIDENTIAL RENOVATION(CA)

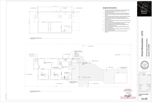
This sheet represents the cover page of a complete U.S. residential permit drawing set prepared for a renovation project in California. The cover sheet is structured in accordance with United States permitting standards and serves as the primary reference document for plan review and approval. It includes: • Project identification and location (U.S.-based project) • Drawing index and sheet references • General notes and scope of work • Applicable California / U.S. building code references • Consultant and documentation information required for permit submission This work demonstrates my experience in producing permit-ready construction drawings for the U.S. market, with emphasis on clarity, organization, and compliance with local authority requirements. The drawing is part of a larger renovation permit package that would typically include architectural, structural, and MEP sheets.
lumion revit-3d-modeling permit-drawings construction-drawings autocad-2d-3d sketchup-model 2d-cad-design 3d-modeilng building-code-compliance plan-set architectural-documentation sheet-layout-organization