01-villa-floor-plan-drafting

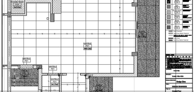
This project showcases professional 2D AutoCAD drafting work for a residential villa, including both the ground floor and first floor plans. Each drawing has been carefully developed with accurate dimensions, clear wall outlines, and proper architectural details such as furniture layout, stairs, and sanitary fixtures. Layers are well-organized, line weights are balanced, and annotations are clear and consistent for easy reading. The design package includes: • Ground Floor Plan (Villa – Tech Package 01) • First Floor Plan (Villa – Tech Package 02) • PDF export sheets with proper plotting and title block setup This project demonstrates my expertise in: • 2D AutoCAD Drafting • Architectural Layout & Space Planning • Layer Management and Drawing Organization • BOQ-ready drafting for quantity takeoff Use cases: tender documents, construction drawings, interior layout visualization, and quantity takeoff sheets. All project information is anonymized and prepared for portfolio presentation. The native DWG files can be provided on request.
residential cad-drafting floor-plan 2d-drafting architectural-drafting construction-drawings villa-plan layer-management