The House of Tranquility

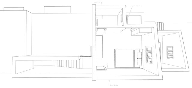
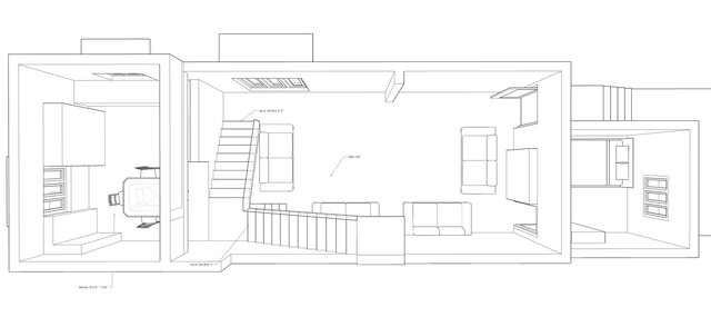
Project Description (English): This modern duplex residence blends simplicity with elegance. The asymmetric roofline adds architectural interest, while the pastel accents soften the structure’s look. Surrounded by a landscaped garden and pathway lighting, the design promotes comfort, functionality, and aesthetic appeal in limited space.
residential-architecture 3d-archietctural-rendering 2d-floor-plan-to-3d-model