A house that blends old and new d29-rendering-1

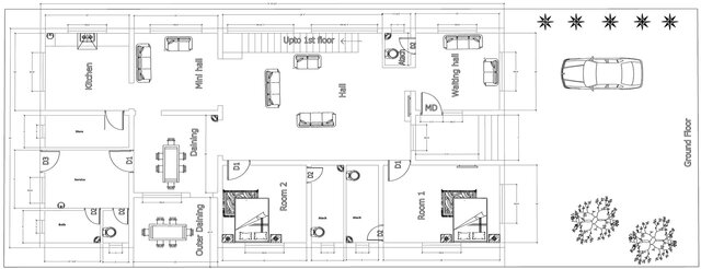
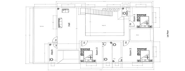
2D and 3D Design Work Completed As a 2D and 3D Designer Engineer, I successfully completed the comprehensive design and visualization package for this modern residential building. The key work completed includes: 2D Technical Drawings: Developed all necessary technical plans for construction, including the Foundation Plan, Floor Layout Plans (Ground and First Floor), Sections, and detailed Elevations. 3D Architectural Modeling: Created a detailed and accurate 3D Model of the building as per the client's specifications and technical requirements. High-Resolution Visualization (Renderings): Day View: Produced a realistic daytime rendering that captures the finished look of the exterior, including the environment, landscaping, and play of light. Night View: Generated a detailed night-time rendering focusing on the exterior lighting design, showcasing how the strategic lighting enhances the architectural features, particularly the stone cladding and the car porch. Material and Finish Specification: Finalized the aesthetic details in 3D, such as the stone/slate cladding pattern, the combination of white and dark exterior paint finishes, and the overall modern aesthetic of the structure. This design package, comprising both technical drawings and high-fidelity visualizations, serves as the complete blueprint for the construction team and ensures the client has a clear understanding of the final project outcome.
3d-design reinforcement elevation-plan archetectural-design working-plan foundation-plan house-floor-plan column-design